Logo IFBK Grafik 2

GUNTIA® Systeme aus Eilenburg

alu-systemtec eilenburg gmbh

Mauerabdeckungen und Mauerverkleidungen

für verputzte Mauern, Sichtbeton, Holzbrüstungen und Klinker. Die Montage erfolgt durch einfaches Aufklemmen auf vorher verschraubte Halterungsbügel aus Rillen- oder Flachprofil. Abstand der Halterungen 60 - 70 cm. Siehe auch unsere Bildersammlung am Ende der Seite.

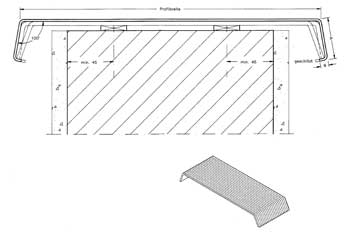
Mauerabdeckung

MauerabdeckungAuf Klick größer

RillenhalterAuf Klick größer

Mauerabdeckung

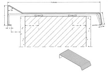
MauerabdeckungAuf Klick größer

RillenhalterAuf Klick größer

Attika-Abdeckung

für Mauern und Brüstungen, mit Halterungen aus Rillen- oder Flachprofil.

Attika-Abdeckung

Attika-Abdeckung

Pfeilerverkleidung

wird einfach durch Verschrauben am Blendrahmen montiert.

Pfeilerverkleidung

Pfeilerverkleidung

Attika-Abdeckung

nach Zeichnung gekantet in Längen bis 3000 mm.

Die Montage erfolgt duch einfaches Aufklemmen auf vorher verschraubte Klemmhalter.

Attika-Abdeckung

Brüstungs-Abdeckung

nach Zeichnung gekantet in Längen bis 3000 mm.

Die Montage erfolgt duch einfaches Aufklemmen auf vorher verschraubte Klemmhalter.

Brüstung

Einbaubeispiel Kirchberg/Luxemburg

Mauerabdeckung

Mauerabdeckung

Mauerabdeckung

Mauerabdeckung

Mauerabdeckung

Mauerabdeckung

Mauerabdeckung

Mauerabdeckung

Mauerabdeckung

Mauerabdeckung

Mauerabdeckung

Mauerabdeckung

Mauerabdeckung

Mauerabdeckung

Mauerabdeckung

Mauerabdeckung

Mauerabdeckung